这个位于俄罗斯莫斯科的小公寓
面积为 25.6㎡
由 Andrey Barinov 设计
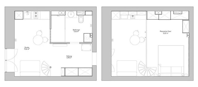
△平面图
△轴测图
玄关的设计非常简洁
灰色的换鞋凳靠墙摆放
为出行归家提供了便利
挂壁式的鞋柜搭配圆形妆容镜
鞋柜上方还能放
眼镜、钥匙、卡包等小物品
客厅只靠墙摆放了一张灰色的双人沙发
旁边有一盏简约的落地灯
与沙发相对的是厨房
木质的柜门、白色的台面
六边形防溅挡板
烹饪简单的美食完全没有问题
餐厅在厨房和客厅中间
白色的圆桌搭配同色系餐椅
顶部选用一盏造型时尚的吊灯
界定了区域的同时
又点缀了空间
卫生间的入口在玄关处
室内因为所处位置的关系
采光并不是很好
所以设计师运用玻璃砖做隔墙
既增加了室内亮度也有一定的隐私性
内嵌式的灰色台盆
安装在墙面上的开关和水龙头
都很特别
镜柜底部还设计了灯带照明
让使用更便利
沙发边的旋转楼梯
拥有独立的踏板
每一个台阶都运用花岗岩点缀
既是联通上下楼的纽带
也能作为小茶几使用
上层空间选用木地板
缓解了清冷气息
灰色的帘子在有需要的时候拉上
就是一个私密空间了
案例来源:内小宅

热点关注
免责声明:本站所刊载的所有的房源信息、活动信息、资料及图片均由网站用户提供,其真实性、合法性由信息发布人负责,本网站不声明或保证其内容之正确性或可靠性。所有信息请与经纪公司、房产公司、家装公司、业主个人等确认为准!